Сегодня 22 января 2026 - 15:56 Мы принимаем: Внутренний курс*: EUR - 95.3  USD - 81.4 

Ayada Maldives 5*

Ayada Maldives расположен в юной части Мальдивского архипелага, в атолле Gaafu Dhaalu, недалеко от экватора. Довольно большой и очень зеленый остров, прекрасная лагуна, просторные виллы и возможность заниматься серфингом — все это делает Ayada одним из популярных семейных отелей. Помимо традиционных типов питания (завтраки, полупансион, полный пансион) отель предлагает также два варианта All Inclusive.

Карта острова

 

Размещение

На острове 122 виллы.

10 Garden Villa (101 кв.м) - расположенные среди тропической зелени, виллы состоят из спальни, ванной комнаты в виде внутреннего дворика и террасы с софой для дневного отдыха. План виллы

33 Beach Villa Pool (103 кв. м) - виллы расположены на пляже. Каждая состоит из спальни, ванной комнаты в виде внутреннего дворика и террасы с шезлонгами и софой для дневного отдыха и бассейном. План виллы

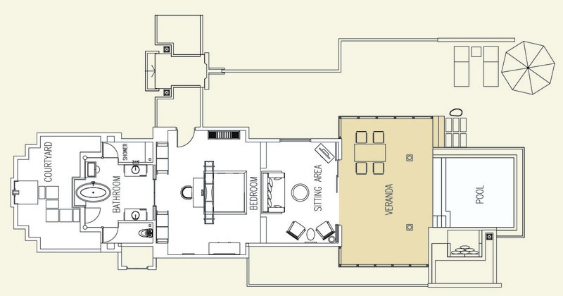
4 Beach Suite with Pool (115 кв. м) - виллы расположены на пляже. Каждая состоит из спальни, гостиной зоны, ванной комнаты и просторной террасы с шезлонгами, софой для дневного отдыха и бассейном. План виллы

14 Sunset Beach Suite with Pool (137 кв. м) - виллы расположены на пляже. Каждая состоит из спальни, большой гостиной зоны, отделенной ступеньками, ванной комнаты и террасы с шезлонгами, софой для дневного отдыха и бассейном. План виллы

11 Sunset Lagoon Suite with Pool (156 кв. м) - виллы расположены над водой. Каждая состоит из просторной спальни, гостиной зоны, отделенной ступеньками, ванной комнаты и террасы с шезлонгами, бассейном и гамаком над лагуной. План виллы

33 Ocean Villa with Pool (108 кв.м) - виллы расположены над водой. Каждая состоит из спальни, ванной комнаты, террасы с шезлонгами, бассейном и гамаком над лагуной. План виллы

14 Sunset Ocean Suite with Pool (172 кв. м) - виллы расположены над водой. Каждая состоит из спальни, просторной ванной комнаты с панорамным видом, отдельной гостиной с небольшой гостевой ванной комнатой и огромной террасы с шезлонгами, обеденной зоной, бассейном и гамаками над лагуной. План виллы

2 Sunset Ocean Family Suite with Pool (172 кв.м) - виллы, аналогичные предыдущим, где гостиная переоборудована в детскую спальню. План виллы

1 Royal Ocean Suite with Pool (318 кв. м) - двухэтажная вилла над водой, расположенная в самом конце понтона. На первом этаже - гостиная, основная спальня с просторной ванной комнатой, огромная терраса с зонами отдыха, бассейном и гамаками над океаном. На втором этаже - спальня с ванной комнатой, балкон с панорамным видом на океан и шезлонгами. План 1 этажа. План 2 этажа.

Во всех номерах: кондиционер, ТВ (плоский LCD-экран со стереосистемой), CD/DVD-плеер, телефон Espresso кофе-машина и набор для приготовления чая, бар / винный холодильник в номере, сейф, выбор антиаллергенных подушек. 

 

Рестораны и бары

Пробуя аппетитные блюда, ужиная на воздухе в вечерней прохладе под звездами, участвуя в дегустации вин, вы сможете насладиться лучшими новинками интернациональной кухни и безукоризненным сервисом в стильной, но при этом совсем не чопорной атмосфере. Приятным дополнением к путешествию гурмана по семи ресторанам, барам и кафе станет богатый выбор вин и изысканных коктейлей. Готовьтесь к гастрономическим наслаждениям в отеле AYADA Maldives.

Основной ресторан Magu в восточной части острова предлагает международную кухню.  Ocean Breeze предлагает обеды и ужины в непринужденной атмосфере посреди голубой лагуны. Здесь можно наблюдать за жизнью морских обитателей или любоваться восхитительными неповторимыми закатами, наслаждаясь блюдами классической средиземноморской кухни и последними новинками наших изобретательных поваров. Kai - стильно оформленный ресторан отличается редким разнообразием блюд азиатской кухни,  от Индии до Японии. В ресторане Mizu шеф будет "колдовать" над своими особенными блюдами прямо перед гостями. Sea Salt - ресторан на песке, с традиционным на Мальдивах барбекю на пляже. Zero Degree - сердце островной жизни, где днем можно отдохнуть у бассейна, а  вечером танцевать под прекрасным звездным небом. Ile De Joie, расположенный над лагуной, предлагает гостям полюбоваться закатом и попробовать разнообразные сорта вин и сыра, а также гаванские сигары. The Ottoman Lounge перенесет гостей в атмосферу традиционного турецкого кафе, со своим фирменным кофе и чаем, а также кальяном.


Спорт и развлечения

Наземные виды спорта: тренажерный зал, студия йоги, теннисный корт, мини-футбол, волейбол, корт для бадминтона, дорожки для спортивной ходьбы (jogging tracks), игровые комнаты с приставками ps3, xbox и столами для игры в пул.

Водные виды спорта: бассейн,  центр водных видов спорта (водные лыжи, серфинг, виндсерфинг, каяки), прогулки на яхте, рыбалка - традиционная и глубоководная, дайвинг – центр.

 

Для детей

Детский клуб Zuzuu и услуги няни.

 

К услугам гостей

СПА-центр AySpa (8 массажных павильонов, сауна, парная, турецкий хамам, душ Виши), салон красоты, галерея бутиков, услуги фотографа, организация свадеб, библиотека CD/DVD. 


Спецпредложения

2026 Early Bird Festive
Действительно: 26.12.2026 - 04.01.2027
При бронировании проживания на новогодний период более, чем за 60 дней до начала тура гостям предоставляется скидка в размере 20% от стоимости виллы.


Условия:
  • Предложение действительно для всех категорий вилл.
  • Предложение действительно также для 3го человека в номере.
2026 Early Bird Offer. Summer
Действительно: 01.05.2026 - 27.09.2026
При бронировании проживания на указанный период более, чем за 30 дней до начала тура - гостям предоставляется скидка в размере 30% от стоимости виллы.


Условия:
  • Предложение действительно для всех категорий вилл.
  • Предложение действительно также для 3го человека в номере.
  • Предложение можно комбинировать с спо "Family Offer".
Early Bird Offer
Действительно: 28.09.2025 - 25.12.2025, 05.01.2026 - 30.04.2026, 28.09.2026 - 25.12.2026
При бронировании проживания на указанный период гостям предоставляется скидка:

  • более, чем за 60 дней до начала тура - скидка в размере 25% от стоимости виллы
  • более, чем за 30 дней до начала тура - скидка в размере 15% от стоимости виллы


Условия:
  • Предложение действительно для всех категорий вилл.
  • Предложение действительно также для 3го человека в номере.
  • Предложение можно комбинировать с спо "Family Offer".


Family Offer
В указанный период проживание и питание для двоих детей младше 16 лет предоставляется бесплатно. Оплачивается налог Green Tax (12 USD на человека в день) и трансфер.

Условия:
  • Предложение действительно для всех категорий вилл.
  • Бесплатное питание для детей предоставляется из детского меню, в соответствии с типом питания, забронированным для родителей.
  • Предложение НЕ распространяется на доплаты за праздничные ужины.
  • Предложение можно комбинировать со всеми вариантами спо "Early Bird".



Выбрать период: 
USD   руб.   DBL EXB CHD
0-1
CHD
2-15
Garden Villa BB 1 021 236 0 118
Beach Villa with Pool BB 1 440 236 0 118
Beach Suite with Pool BB 1 576 236 0 118
Sunset Beach Suite with Pool BB 1 924 236 0 118
Sunset Lagoon Suite with Pool BB 1 900 N/A 0 118
Ocean Villa with Pool BB 2 006 236 0 118
Sunset Family Lagoon Suite with Pool (4 чел) BB 2 248 236 0 118
Beach Family Suite with Pool (4 чел) BB 2 620 236 0 118
Sunset Ocean Suite with Pool (реб. до 3 лет) BB 3 369 N/A 0 N/A
Sunset Ocean Family Suite with Pool (4 чел) BB 3 641 236 0 118
Royal Ocean Suite with Pool 2 bdr (4 чел) BB 7 340 236 0 118

Расчет тура

Имя *
Телефон *
E-mail *
Страна путешествия *
Приезд *
Отъезд *

Взрослые: *

Дети: *

Пожелание
Бюджет (на одного человека)

Проверочный код:

*

* Не является бронированием!


Цены указаны за номер в  сутки, в USD.

Суточная стоимость включает:
  • проживание (1 ночь) с указанным типом питания
  • Service charge и налог GST (28,7%)
  • Агентскую комиссию

Дополнительно оплачивается:
  • Налог Green Tax (12 USD на человека в день), кроме детей младше 2 лет
  • Трансфер (внутренний перелет ок. 55 мин + катер ок 50 мин) - 590 USD на взрослого, 295 USD на ребенка младше 12 лет.
  • Доплата за полупансион (НВ): 83 USD на взрослого, 42 USD на ребенка младше 16 лет.
  • Доплата за полный пансион (FB): 116 USD на взрослого, 58 USD на ребенка младше 16 лет.
  • Доплата за Crystal Package (ALL):  173 USD на взрослого, 86 USD на ребенка младше 16 лет. 
  • Доплата за Diamond Package (ALL): 272 USD на взрослого, 136 USD на ребенка младше 16 лет. Для ребенка младше 6 лет - без доплаты. Для подтверждения Diamond Package необходимо бронировать не менее 7 ночей проживания.
  • Доплата за Рождественский ужин 24.12.2025: 245 USD на взрослого, 125 USD на ребенка младше 16 лет. Для детей младше 6 лет - бесплатно.
  • Доплата за Новогодний ужин 31.12.2025: 365 USD на взрослого, 185 USD на ребенка младше 16 лет. Для детей младше 6 лет - бесплатно.
  • Доплата за Рождественский ужин 24.12.2026: 300 USD на взрослого, 150 USD на ребенка младше 16 лет.
  • Доплата за Новогодний ужин 31.12.2026: 365 USD на взрослого, 185 USD на ребенка младше 16 лет.

Максимальное размещение:
Garden Villa with Pool, Beach Villa with Pool, Ocean Villa with Pool - 3 взрослых или 2 взрослых + 2 детей
Beach Suite with Pool, Sunset Beach Suite with Pool, Sunset Lagoon Suite with Pool, Sunset Ocean Suite with Pool - 3 взрослых или 2 взрослых + 2 детей
Sunset Family Lagoon Suite with Pool - до 4 человек
Sunset Ocean Family Suite with Pool, Family Beach Suite with Pool - до 5 человек
Royal Ocean Suite with Pool - до 6 человек

Check-in / Check-out:
Официальное время заселения в номер: 14.00
Официальное время освобождения номера: 12.00


Если Вы не нашли спецпредложение по интересующему Вас отелю, отправьте запрос менеджеру

ОТЕЛИ СТРАНЫ
© 1997-2026 "ЕВРОБИЗНЕСТУР"
При перепечатке любых материалов или их фрагментов ссылка обязательна.
м. Славянский бульвар +7 (495) 995-2151
м. Кунцевская +7 (495) 440-7997, +7 (495) 440-7998, +7 (495) 440-7940
Политика в отношении обработки персональных данных
Яндекс.Метрика