Сегодня 4 ноября 2025 - 12:48 Мы принимаем: Внутренний курс*: EUR - 98.1  USD - 84.9 

Four Seasons Resort Seychelles at Desroches Island 5* deluxe

Four Seasons Resort Seychelles at Desroches Island 5*deluxe – это уединенный курорт на о. Дерош, единственный на острове, расположенном в 35 минутах полета на юго-запад от Маэ. Остров Дерош раскинулся на 402 гектарах земли, окаймленных пляжем из белого песка длиной 14 км. Гостям отеля ничто не помешает насладиться в полной мере отдыхом среди буйной тропической растительности острова под пение тропических птиц и шум Индийского океана. Отель делает ставку на простую, естественную роскошь, отражающую беззаботный образ жизни, и сфокусирован на релаксации и приключениях.

Карта острова

 

Размещение

В отеле 71 вилла и бунгало, сьюты и резиденции:

21 Ocean View Pool Villa (191 кв.м) – виллы, расположенные в южной части острова на пляже Coral Beach с видом на океан и прямым выходом к пляжу. Вилла состоит из спальни, ванной комнаты с ванной и душевой кабиной, с душем на открытом воздухе. Имеется терраса с газебо и cобственным бассейном. План виллы

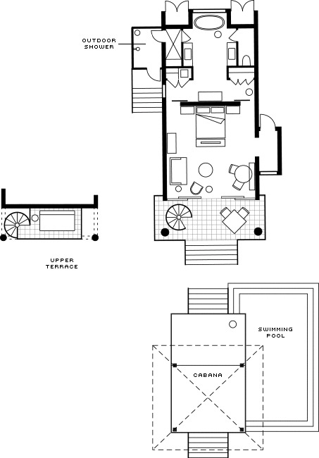
18 Beach Pool Villa (256 кв.м) – расположены у пляжа в северной части острова с частичным видом на океан. Состоят из спальни, ванной комнаты с ванной и душем, душем на открытом воздухе и небольшого открытого бассейна. План виллы

9 Sunset View Pool Villa (195 кв.м) – виллы, расположенные на пляже Sunset Beach в западной части острова с видом на океан и прямым выходом к пляжу. Состоят из спальни с гостиной зоной, ванной комнаты с ванной и душевой кабиной, с душем на открытом воздухе. Имеется балкон на втором этаже, частный сад с газебо и собственным бассейном. План виллы

9 Sunset Beach Suite (267 кв.м) – виллы, расположенные на пляже Sunset Beach в западной части острова с видом на океан и прямым выходом к пляжу. Состоят из гостиной, спальни, кабинета с софой, ванной комнаты с ванной и душевой кабиной. Имеется дополнительная туалетная комната. Частный сад с газебо и собственным бассейном. План виллы

1 Desroches Two-bedrooms Suite (663 кв.м) – вилла расположена на пляже Sunset Beach в западной части острова с видом на океан и прямым выходом к пляжу. Состоит из 2 гостиных (одна – с обеденной и кухонной зоной), 2 спален, 2 ванных комнат (каждая – с ванной, душевой кабиной и душем на открытом воздухе), гостевого туалета. Имеет частный сад, террасы, большой бассейн (45 кв.м), обеденную зону на открытом воздухе, балкон на 2 этаже. План виллы

1 Two-Bedroom Presidential Villa (475 кв.м) – вилла расположена недалеко от пляжа в северной части острова с частичным видом на океан. Состоит из гостиной с обеденной зоной, 2 спален, 2 ванных комнат, каждая с душем, ванной и душем на открытом воздухе. Имеется терраса с собственным бассейном и обеденной зоной на открытом воздухе, включены услуги батлера. План виллы

1 Three-Bedroom Presidential Villa (8890 кв.м) – вилла расположена недалеко от пляжа в северной части острова с частичным видом на океан. Состоит из гостиной с обеденной зоной, 3 спален, 3 ванных комнат, каждая с душем и душем на открытом воздухе, 2 с ванной, имеется тренажерный зал. Имеется терраса с собственным бассейном и обеденной зоной на открытом воздухе, включены услуги батлера. План виллы

В отеле также имеются Five Bedroom Presidential Villa (План виллы), Seven Bedroom Presidential Villa (План виллы), резиденции с 2- (План виллы), 3- (План виллы), 4- (План виллыи 5 спальнями (План виллы). Подробности уточняйте у наших менеджеров.

В каждой вилле: кондиционер, кабельное и спутниковое TV, бесплатный Wi-Fi, телефон, голосовая почта, мини-бар, оборудование для приготовления чая и кофе, сейф, фен, халаты.


Рестораны и бары

Claudine – ресторан, открытый для завтраков, обедов и ужинов, кухня Средиземноморской ривьеры, расположен у бассейна. Lighthouse – ресторан-гриль и суши-бар с богатым выбором морепродуктов, открыт для ужинов. Расположен в здании маяка, имеет вид на океан. Также есть лаунж-зона на первом этаже. Ресторан The Deli открыт для завтраков и обедов, предлагает блюда международной кухни (выпечка, закуски, десерты, легкие блюда). The Castaway Bar расположен в Castaway Center, предлагает освежительные напитки после занятий водными видами спорта и морских прогулок. The Bar предлагает коктейли, сигары и кальян у бассейна, открыт до позднего вечера. Гости могут также выбрать блюда для заказа на виллу.


Спорт и развлечения

Наземные виды спорта: теннисный корт, фитнес-центр, пляжный волейбол, йога, велосипедные прогулки, пешие прогулки по острову.

Водные виды спорта: бассейн с выходом на пляж, центр водных видов спорта Castaway предлагает снорклинг, погружение с аквалангом, каяки, парусный спорт, катание на паддл-борде, виндсерфинг и многое другое. Дерош – родина рыбалки мирового класса, имеется четыре основных вида: ловля рыбы нахлыстом, с использованием донных тралов, ловля на блесну и глубоководная рыбалка.


Для детей

В отеле работает детский клуб Kids For All Seasons.


К услугам гостей

The Circle of Connection Spa с 5 процедурными кабинетами и салоном красоты, полная йога-программа. Центр для изучения уникального комплекса растительной и морской жизни острова Дерош. В отеле проводятся ночные кинопоказы.

1 человек
Питание

Размещение Цена за ночь Цена за 7 ночей
Ocean View Pool Villa 1 199 € 8 395 € Детали
Стоимость путешествия
Проживание 7 ночей, 1 чел. 8 395 €
Налоги 1 465 €

Итого 8 395 €

(823 504 ₽ по внутреннему курсу на 04.11.2025)

налоги и сборы включены


Стоимость тура в рублях пересчитана по текущему курсу и актуальна на сегодня.
Окончательный расчёт формируется после подтверждения в день оплаты. Уточняйте у вашего менеджера.

Beach Pool Villa 1 457 € 10 201 € Детали
Стоимость путешествия
Проживание 7 ночей, 1 чел. 10 201 €
Налоги 1 781 €

Итого 10 201 €

(1 000 714 ₽ по внутреннему курсу на 04.11.2025)

налоги и сборы включены


Стоимость тура в рублях пересчитана по текущему курсу и актуальна на сегодня.
Окончательный расчёт формируется после подтверждения в день оплаты. Уточняйте у вашего менеджера.

Sunset View Pool Villa 1 624 € 11 370 € Детали
Стоимость путешествия
Проживание 7 ночей, 1 чел. 11 370 €
Налоги 1 985 €

Итого 11 370 €

(1 115 379 ₽ по внутреннему курсу на 04.11.2025)

налоги и сборы включены


Стоимость тура в рублях пересчитана по текущему курсу и актуальна на сегодня.
Окончательный расчёт формируется после подтверждения в день оплаты. Уточняйте у вашего менеджера.

Sunset Beach Suite 2 353 € 16 470 € Детали
Стоимость путешествия
Проживание 7 ночей, 1 чел. 16 470 €
Налоги 2 875 €

Итого 16 470 €

(1 615 736 ₽ по внутреннему курсу на 04.11.2025)

налоги и сборы включены


Стоимость тура в рублях пересчитана по текущему курсу и актуальна на сегодня.
Окончательный расчёт формируется после подтверждения в день оплаты. Уточняйте у вашего менеджера.

2-Bedroom Residence Villa (4 чел) 3 674 € 25 715 € Детали
Стоимость путешествия
Проживание 7 ночей, 1 чел. 25 715 €
Налоги 4 489 €

Итого 25 715 €

(2 522 634 ₽ по внутреннему курсу на 04.11.2025)

налоги и сборы включены


Стоимость тура в рублях пересчитана по текущему курсу и актуальна на сегодня.
Окончательный расчёт формируется после подтверждения в день оплаты. Уточняйте у вашего менеджера.

3-Bedroom Presidential Villa (6 чел) 4 554 € 31 878 € Детали
Стоимость путешествия
Проживание 7 ночей, 1 чел. 31 878 €
Налоги 5 565 €

Итого 31 878 €

(3 127 232 ₽ по внутреннему курсу на 04.11.2025)

налоги и сборы включены


Стоимость тура в рублях пересчитана по текущему курсу и актуальна на сегодня.
Окончательный расчёт формируется после подтверждения в день оплаты. Уточняйте у вашего менеджера.

2-Bedroom Presidential Villa (6 чел) 5 085 € 35 597 € Детали
Стоимость путешествия
Проживание 7 ночей, 1 чел. 35 597 €
Налоги 6 214 €

Итого 35 597 €

(3 492 076 ₽ по внутреннему курсу на 04.11.2025)

налоги и сборы включены


Стоимость тура в рублях пересчитана по текущему курсу и актуальна на сегодня.
Окончательный расчёт формируется после подтверждения в день оплаты. Уточняйте у вашего менеджера.

2-Bedroom Desroches Suite (4 чел) 5 465 € 38 254 € Детали
Стоимость путешествия
Проживание 7 ночей, 1 чел. 38 254 €
Налоги 6 678 €

Итого 38 254 €

(3 752 678 ₽ по внутреннему курсу на 04.11.2025)

налоги и сборы включены


Стоимость тура в рублях пересчитана по текущему курсу и актуальна на сегодня.
Окончательный расчёт формируется после подтверждения в день оплаты. Уточняйте у вашего менеджера.

4-Bedroom Residence Villa (8 чел) 5 753 € 40 273 € Детали
Стоимость путешествия
Проживание 7 ночей, 1 чел. 40 273 €
Налоги 7 030 €

Итого 40 273 €

(3 950 736 ₽ по внутреннему курсу на 04.11.2025)

налоги и сборы включены


Стоимость тура в рублях пересчитана по текущему курсу и актуальна на сегодня.
Окончательный расчёт формируется после подтверждения в день оплаты. Уточняйте у вашего менеджера.

3-Bedroom Residence Villa (6 чел) 6 831 € 47 817 € Детали
Стоимость путешествия
Проживание 7 ночей, 1 чел. 47 817 €
Налоги 8 348 €

Итого 47 817 €

(4 690 848 ₽ по внутреннему курсу на 04.11.2025)

налоги и сборы включены


Стоимость тура в рублях пересчитана по текущему курсу и актуальна на сегодня.
Окончательный расчёт формируется после подтверждения в день оплаты. Уточняйте у вашего менеджера.

5-Bedroom Residence Villa (10 чел) 6 952 € 48 667 € Детали
Стоимость путешествия
Проживание 7 ночей, 1 чел. 48 667 €
Налоги 8 496 €

Итого 48 667 €

(4 774 241 ₽ по внутреннему курсу на 04.11.2025)

налоги и сборы включены


Стоимость тура в рублях пересчитана по текущему курсу и актуальна на сегодня.
Окончательный расчёт формируется после подтверждения в день оплаты. Уточняйте у вашего менеджера.

5-Bedroom Presidential Villa (10 чел) 11 385 € 79 695 € Детали
Стоимость путешествия
Проживание 7 ночей, 1 чел. 79 695 €
Налоги 13 913 €

Итого 79 695 €

(7 818 080 ₽ по внутреннему курсу на 04.11.2025)

налоги и сборы включены


Стоимость тура в рублях пересчитана по текущему курсу и актуальна на сегодня.
Окончательный расчёт формируется после подтверждения в день оплаты. Уточняйте у вашего менеджера.

7-Bedroom Presidential Villa (14 чел) 14 421 € 100 947 € Детали
Стоимость путешествия
Проживание 7 ночей, 1 чел. 100 947 €
Налоги 17 623 €

Итого 100 947 €

(9 902 901 ₽ по внутреннему курсу на 04.11.2025)

налоги и сборы включены


Стоимость тура в рублях пересчитана по текущему курсу и актуальна на сегодня.
Окончательный расчёт формируется после подтверждения в день оплаты. Уточняйте у вашего менеджера.

Выбрать период: 
EUR   руб.   DBL EXB CHD
0-4
CHD
5-11
Ocean View Pool Villa BB 1 200 N/A 0 N/A
Beach Pool Villa BB 1 458 N/A N/A N/A
Sunset View Pool Villa BB 1 625 N/A 0 0
Sunset Beach Suite BB 2 353 231 0 0
2-Bedroom Desroches Suite (4 чел) BB 5 465 231 0 0
2-Bedroom Residence Villa (4 чел) BB 3 674 N/A 0 0
3-Bedroom Residence Villa (6 чел) BB 6 831 N/A 0 0
4-Bedroom Residence Villa (8 чел) BB 5 754 N/A 0 0
5-Bedroom Residence Villa (10 чел) BB 6 953 N/A 0 0
2-Bedroom Presidential Villa (6 чел) BB 5 086 N/A 0 0
3-Bedroom Presidential Villa (6 чел) BB 4 554 N/A 0 0
5-Bedroom Presidential Villa (10 чел) BB 11 385 N/A 0 0
7-Bedroom Presidential Villa (14 чел) BB 14 421 231 0 0

Расчет тура

Имя *
Телефон *
E-mail *
Страна путешествия *
Приезд *
Отъезд *

Взрослые: *

Дети: *

Пожелание
Бюджет (на одного человека)

Проверочный код:

*

* Не является бронированием!


*CHLD - (5-12), EXBD - (13-18)

Дети 0-4 года размещаются в отеле бесплатно.

Дети с 13 лет и взрослые оплачивают extra bed  и завтрак 238 евро в сутки.

В стоимость пакета (7/10/12/14 ночей) включено:

  • Проживание в отеле на человека с указанным типом питания на указанное кол-во ночей.
  • service charge (10%), government tax (15%)
  • Мед. страховка
  • Комиссия агентству

Дополнительно оплачивается:

  • Авиаперелет - в зависимости от действующего тарифа и курса авиакомпании.
  • Доплата за ВB для третьего в номере: 74 евро на взрослого, 13-18 лет;  37 евро на ребенка 5-12 лет.
  • Доплата за НB:164 евро на взрослого, 13-18 лет;  82 евро на ребенка 5-12 лет.
  • Доплата за FB: 244 евро на взрослого, 13-18 лет;  122 евро на ребенка 5-12 лет.
  • Доплата за All: 392 евро на взрослого, 13-18 лет;  237 евро на ребенка 5-12 лет.
  • Обязательная доплата за НГ ужин 31.12.24 664 евро на взрослого и 332 евро на ребенка 5-12 лет.
  • Стоимость внутреннего перелета о.Маэ-о.Дерош-о.Маэ в период 01.11.24-23.12.24/ 09.01.25-31.10.25: 645 евро за взрослого, 570 евро за ребенка 2-12 лет; в период 24.12.24-08.01.25 1010 евро за взрослого, 875 евро за ребенка 2-12 лет. 

Максимальное размещение:

  • Beach Pool Villa -2 взрослых
  • Ocean view Pool Villa, Sunset View Pool Villa – 2 взрослых + 1 ребенок
  • Sunset Beach Suite - 2 взрослых + 1 ребенок + 1 инфант или 3 взрослых + 1 ребенок
  • 2-Bedroom Desroches Suite - 4 взрослых + 2 детей + 1 инфант или 5 взрослых + 1 инфант
  • 2-Bedroom Residence Villa - 4 взрослых или детей
  • 3-Bedroom Residence Villa - 6 взрослых или детей
  • 3-Bedroom Presidential Villa — 6 взрослых + 2 детей
  • 4-Bedroom Residence Villa — 8 взрослых или детей
  • 5-Bedroom Residence Villa -  10 взрослых или детей
Check-in / Check-out:
  • Официальное время заселения в номер: 15.00.
  • Официальное время освобождения номера: 12.00.
  • При бронировании позднего освобождения номера (до 18.00) оплачивается 50% стоимости номера (кроме периода 21.12.24 - 08.01.25, в этот период - 100%).
  • При бронировании раннего заселения (ранее 14.00) и позднего освобождения номера (после 18.00) оплачивается 100% стоимости номера.

Если Вы не нашли спецпредложение по интересующему Вас отелю, отправьте запрос менеджеру

© 1997-2025 "ЕВРОБИЗНЕСТУР"
При перепечатке любых материалов или их фрагментов ссылка обязательна.
м. Славянский бульвар +7 (495) 995-2151
м. Кунцевская +7 (495) 440-7997, +7 (495) 440-7998, +7 (495) 440-7940
Политика в отношении обработки персональных данных
Яндекс.Метрика